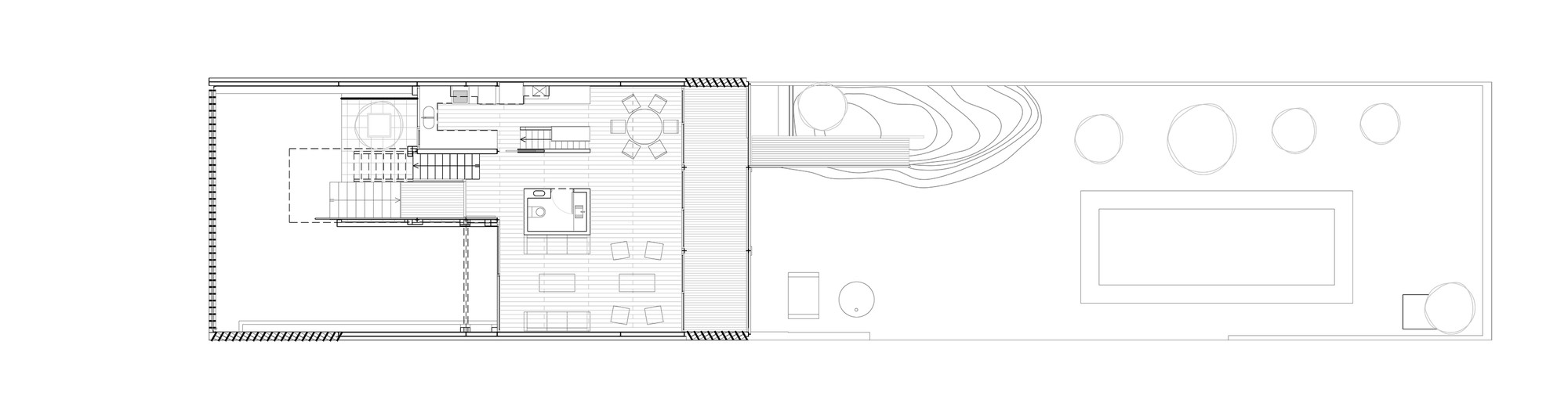
NORTH  BUENOS AIRES house

Casa Ramirez, Campana Buenos Aires, Argentina 1999-2001

 

   *collaboration w- CG     
Cadau-Gimenez, Lorenzo-Eiroa associated architect